










Proyecto: Forum Creativa – Colegio Andino.
Tipo: Equipamiento educativo – artes y música.
Estado: Proyecto arquitectónico.
Intervención: Adecuación y ampliación del Bloque F existente.
Localización: Bogotá, Colombia.
Forum Creativa es una intervención arquitectónica que busca transformar la circulación central del campus del Colegio Andino en un espacio de encuentro, permanencia e intercambio. El proyecto abre esta vía longitudinal hacia el campus exterior, generando un espacio de transición que desacelera los recorridos cotidianos y propicia encuentros no programados entre estudiantes y docentes.
La propuesta articula nuevas relaciones interior–exterior mediante la fragmentación y el escalonamiento del volumen, integrando patios, terrazas y áreas verdes como extensiones del programa académico de artes y música. Los espacios de enseñanza se conectan visual y físicamente entre sí y con el paisaje circundante, fortaleciendo la experiencia pedagógica y la vida colectiva del campus.
La intervención combina la conservación del Bloque F existente con una ampliación en estructura mixta, incorporando estrategias de confort térmico, lumínico y acústico, así como criterios de sostenibilidad que mejoran el desempeño ambiental del edificio y su integración con el entorno.














Proyecto: Centro de Formación SENA – Ciénaga de Oro.
Tipo: Equipamiento educativo y comunitario.
Estado: Proyecto arquitectónico – participación.
Intervención: Implantación de nuevo equipamiento con integración paisajística y espacio público.
Localización: Ciénaga de Oro, Córdoba, Colombia.
Fecha: 2024.
Resultado: Participación.
El proyecto del Centro de Formación del SENA en Ciénaga de Oro se concibe como una intervención territorial de carácter abierto, en la que el paisaje, la arquitectura y el espacio público se integran de manera estratégica para dar respuesta a las dinámicas sociales, ambientales y productivas del municipio y su región de influencia. La propuesta articula de forma coherente los sistemas natural, agrario y construido, entendiendo el proyecto no solo como un equipamiento educativo, sino como un catalizador de desarrollo social y comunitario.
Implantado como un umbral urbano y hito territorial, el proyecto refuerza la conectividad regional y local, consolidándose como un punto de referencia que ordena y estructura su entorno inmediato. La intervención reconoce y pone en valor el humedal y las áreas de protección ambiental, incorporándolos como parte activa del proyecto mediante espacios de transición, recorridos paisajísticos y zonas de encuentro que promueven la apropiación colectiva y la educación ambiental.
Desde el punto de vista arquitectónico, la propuesta integra criterios bioclimáticos y estrategias de sostenibilidad, priorizando la ventilación cruzada, el control solar, el aprovechamiento de las condiciones climáticas locales y el uso eficiente de los recursos. Estos principios permiten configurar ambientes de aprendizaje confortables, flexibles y adaptados a las necesidades de la comunidad educativa.
En conjunto, el proyecto se consolida como un espacio educativo, productivo y comunitario, orientado a fortalecer la formación técnica y tecnológica, promover la inclusión social y contribuir al desarrollo sostenible de Ciénaga de Oro y su territorio, reafirmando el rol del SENA como institución clave en la transformación social y económica del país.













Proyecto: Concurso Colegio La Salle de Cartagena.
Tipo: Equipamiento educativo.
Estado: Concurso de arquitectura
Intervención: Diseño de complejo educativo con espacios académicos, culturales y comunitarios.
Localización: Cartagena, Bolívar, Colombia.
Fecha: 2022.
En colaboración con: Mazzanti Arquitectos.
Resultado: Participación.
El proyecto para el Colegio La Salle de Cartagena plantea un complejo educativo concebido como un sistema integral de aprendizaje, en el cual la arquitectura actúa como un elemento articulador entre los espacios académicos, culturales y comunitarios. La propuesta reconoce el rol del equipamiento educativo como infraestructura social capaz de fortalecer los vínculos entre la institución, sus usuarios y el contexto urbano inmediato.
La organización volumétrica se estructura a partir de patios interiores y espacios intermedios, los cuales regulan la escala, favorecen las condiciones ambientales y establecen una relación constante entre el usuario, la arquitectura y el entorno. Estos vacíos funcionan como núcleos de encuentro, iluminación y ventilación natural, promoviendo dinámicas de interacción y apropiación colectiva.
Desde una visión pedagógica contemporánea, el proyecto prioriza la creación de ambientes flexibles, adaptables y abiertos, capaces de responder a distintos métodos de enseñanza y actividades complementarias. La arquitectura busca así potenciar el bienestar, la convivencia y el desarrollo integral de la comunidad educativa, consolidando al Colegio La Salle como un espacio de aprendizaje activo, inclusivo y vinculado a su contexto social y climático.











Proyecto: Concurso Parque Regional Tominé.
Tipo: Parque regional y proyecto de paisaje.
Estado: Concurso de arquitectura y paisaje.
Intervención: Diseño de parque de integración regional y puesta en valor del paisaje de la sabana.
Localización: Sabana de Bogotá, Colombia.
Fecha: 2016.
En colaboración con: Lorenzo Castro.
Resultado: Participación.
El proyecto del Parque Regional Tominé se concibe como una infraestructura paisajística de escala regional, orientada a consolidar un espacio público de acceso equitativo para los habitantes de la Sabana de Bogotá y la ciudad capital. La propuesta entiende el parque como un dispositivo de integración territorial, capaz de articular valores ecológicos, ambientales, culturales y sociales del paisaje sabanero.
La intervención se implanta en un territorio históricamente configurado por la interacción del agua con el sistema montañoso, la vegetación nativa, la fauna y los modos de vida tradicionales de las comunidades locales. A partir de esta condición, el proyecto propone un paisaje continuo que reconoce los ciclos hídricos, fortalece los ecosistemas existentes y recupera la relación entre el habitante y el entorno natural.
El parque se estructura mediante recorridos, áreas de contemplación y espacios de encuentro que permiten la apropiación gradual del territorio, promoviendo actividades recreativas, educativas y culturales compatibles con la conservación ambiental. La propuesta busca así consolidar un modelo de parque regional que equilibre protección ecológica y uso público, fortaleciendo la identidad paisajística de la Sabana de Bogotá y su valor como patrimonio natural y cultural.













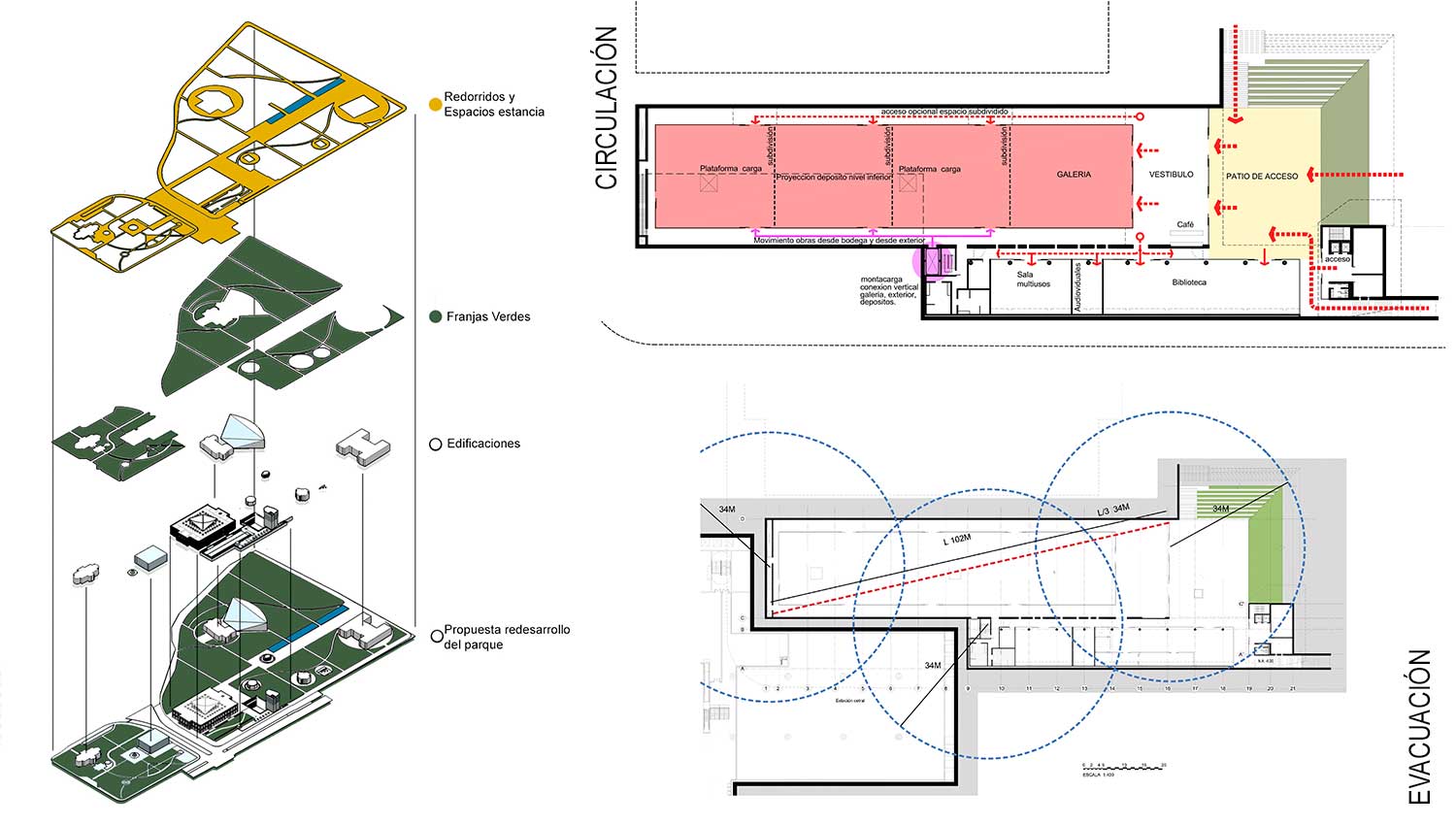
Proyecto: Concurso Ampliación Museo de Artes de Lima.
Tipo: Equipamiento cultural y museográfico.
Estado: Concurso de arquitectura.
Intervención: Ampliación y reorganización de áreas públicas, expositivas y educativas.
Localización: Lima, Perú.
Fecha: 2016.
En colaboración con: Leonardo Alvares.
Resultado: Participación.
La propuesta para la ampliación del Museo de Artes de Lima se fundamenta en la voluntad de fortalecer la relación entre el edificio y el espacio público, disponiendo la mayor cantidad posible de áreas públicas a nivel de la calle. Esta estrategia permite liberar y poner en valor las fachadas históricas del museo, consolidando una relación más abierta, accesible y continua con el parque y su entorno urbano inmediato.
El proyecto se organiza a partir de una clara estrategia programática y espacial. En la esquina más urbana y activa del parque se propone un área verde de recreación pasiva y contemplativa, concebida como un espacio de transición entre ciudad, paisaje y arquitectura. Bajo esta superficie pública, una planta en sótano alberga áreas expositivas flexibles, capaces de adaptarse a distintos formatos curatoriales y requerimientos museográficos.
Complementariamente, la propuesta incorpora un bloque externo de desarrollo vertical destinado a las áreas de la escuela taller, estableciendo una relación directa entre formación, producción cultural y espacio público. En conjunto, el proyecto plantea una ampliación que respeta la preexistencia, potencia el uso público del museo y refuerza su rol como equipamiento cultural activo, integrado al tejido urbano de Lima.