CLÍNICA POLICÍA NACIONAL – TUNJA BOYACA
PROCURADURÍA GENERAL DE NACIÓN – SAN GIL
PROCURADURÍA GENERAL DE NACIÓN – TUNJA
PROCURADURÍA GENERAL DE NACIÓN – MEDELLIN
RECONSTRUCCIÓN SENA SEDE PROVIDENCIA
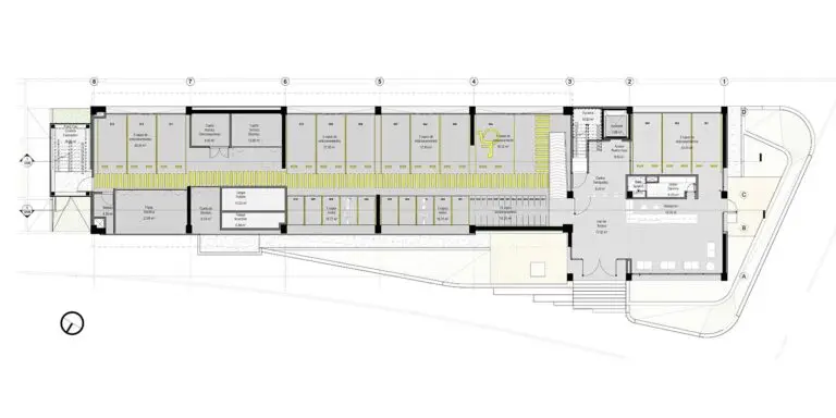
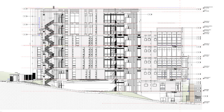
AMBIENTES DE FORMACION SENA POPAYAN EDIFICIO
AMBIENTES DE FORMACION SENA POPAYAN POLIDEPORTIVO
AMBIENTES DE FORMACIÓN SENA VÉLEZ
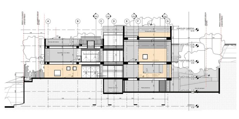
JARDÍN INFANTIL ARBOLEDA – SANTA TERESITA
FONADE SALUD
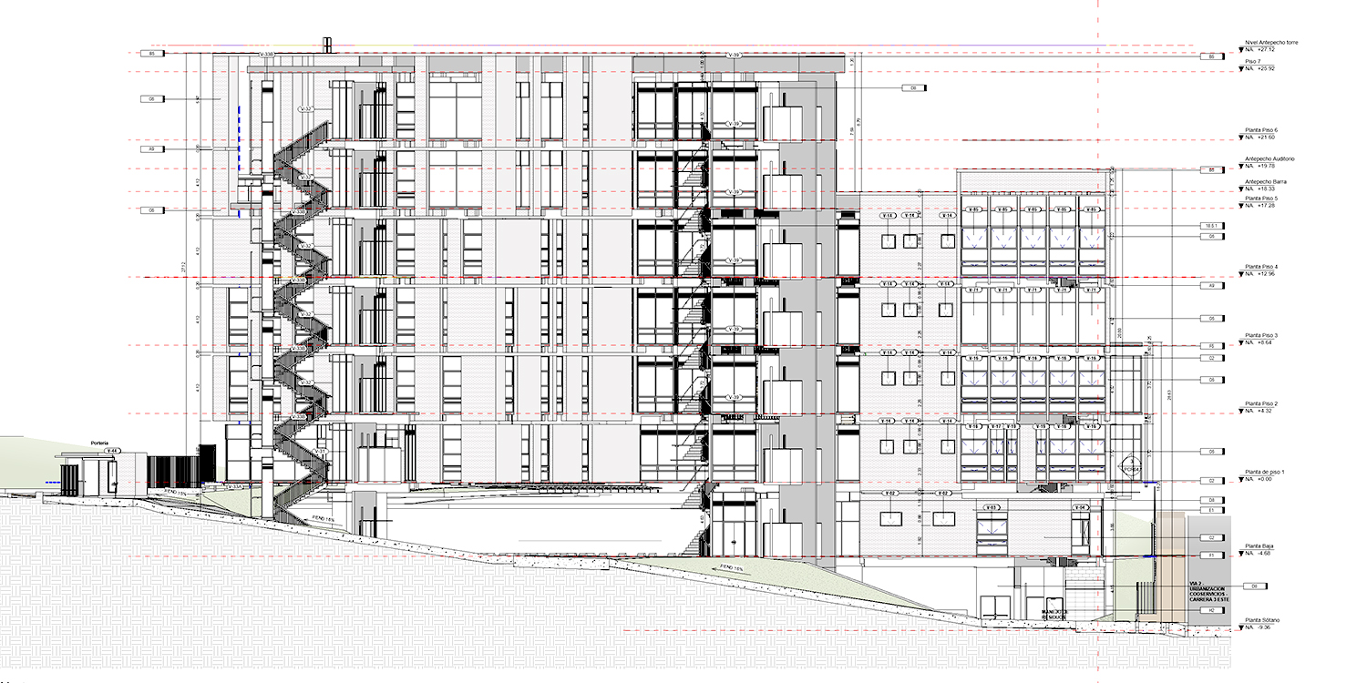
MEGACOLEGIO ALUNA
ESCUELA GASTRONOMÍA, HOTELERÍA Y TURISMO – GAIRA
CENTRO CULTURAL FUSAGASUGÁ
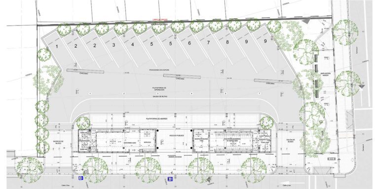
ESPACIO PUBLICO Y TERMINAL DE SOPO
PROYECTO URBANO TURÍSTICO–RESIDENCIAL MAKAIRA
AMBIENTES DE FORMACION SENA POPAYAN
ADECUACIÓN EDIFICIO ADMINISTRATIVO PNNC
FONADE EDUCACIÓN
PATIO PORTAL CALICANTO